【石材炫酷切割】打造最具高科技质感的现代住宅
2015-06-04 16:37:44
来源:大中华石材商
有0人参与
浏览次数:4175
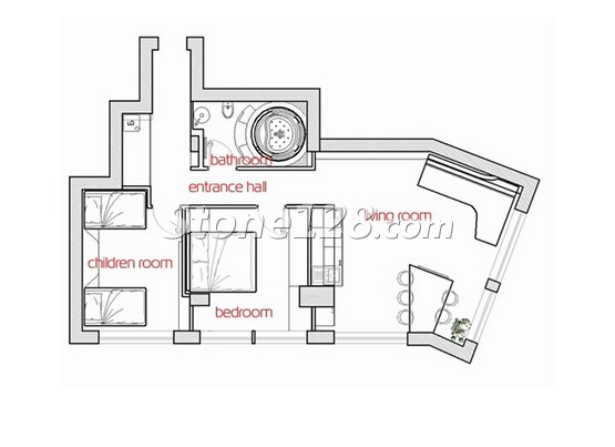
核心提示:保加利亚的Bozhinovski Design完成了一个85㎡的现代高科技质感的私人住宅设计项目,供两个成人和两个小孩居住。整体设计十分高调动感,冷白的灯光打在切割状的背景墙上,极具抽象主义风格。
保加利亚的Bozhinovski Design完成了一个85㎡的现代高科技质感的私人住宅设计项目,供两个成人和两个小孩居住。整体设计十分高调动感,冷白的灯光打在切割状的背景墙上,极具抽象主义风格。











现代高科技质感住宅设计,软装与硬装配套,全高光质感,冷硬炫酷。儿童房更是别有洞天,3D立体效果逼真到分不清是玩偶还是壁画。这家公司十分擅长超现代的未来感设计,细节全面,没有违和感令人惊叹。















本文来源:来源:大中华石材商
- 下一篇:盘点广州十大地标性建筑
- 上一篇:天然石材浴室柜台面欣赏

